In Vermietung: Zwischen Wuhle und Wohngefühl – Ihr neues Zuhause in Kaulsdorf
)
In Vermietung: Zwischen Wuhle und Wohngefühl – Ihr neues Zuhause in Kaulsdorf

© Kondor Wessels
Bauvorhaben: Lily-Braun-Straße 13 und 15 in 12619 Berlin
Bezugsfertigkeit: voraussichtlich 03/2026
Willkommen in Ihrem neuen Zuhause in Kaulsdorf. In der Lily Braun-Straße entstehen zwei moderne Wohngebäude mit insgesamt 154 Mietwohnungen. Hier trifft zeitgemäße Architektur auf hohe Wohnqualität – ideal für alle, die urbanes Leben mit naturnaher Umgebung verbinden möchten: Singles, Paare, Familien und Menschen mit besonderen Ansprüchen an Barrierefreiheit.
Die beiden Gebäude erstrecken sich über sechs Vollgeschosse sowie ein zurückgesetztes Staffelgeschoss. Alle Etagen sind bequem per Aufzug erreichbar und bieten einen barrierefreien Zugang. Auch 118 Wohnungen sind barrierefrei gestaltet und ermöglichen mobilitätseingeschränkten Menschen ein selbstbestimmtes Leben.
Bitte beachten Sie, dass aufgrund der überaus hohen Nachfrage alle Besichtigungstermine sehr schnell vergeben sein werden. Die entsprechenden Exposés werden dann nicht mehr angezeigt. Unser Vermietungsteam wird alle Interessentenanfragen bearbeiten und regelmäßig neue Objekte einstellen, sobald wieder Besichtigungstermine verfügbar sind. Bitte sehen Sie von der Kontaktaufnahme über unsere Servicebüros sowie unsere Vermietungsteams ab.
Die Lily-Braun-Straße befindet sich in einer ruhigen und grünen Wohnlage im beliebten Ortsteil Kaulsdorf im Bezirk Marzahn-Hellersdorf. Die Umgebung ist perfekt für alle, die das urbane Leben schätzen, aber nicht auf ein Wohnen im Grünen verzichten möchten. Der in der Nähe befindliche Kaulsdorfer Park sowie der idyllische Wuhle-Wanderweg laden zu Spaziergängen, sportlichen Aktivitäten und erholsamen Stunden im Freien ein.
Der Neubau fügt sich harmonisch in die bestehende Wohnstruktur ein. Die modernen, liebevoll gestalteten Außenanlagen schaffen eine angenehme Atmosphäre zum Verweilen. Für Kinder stehen abwechslungsreiche Spielflächen zur Verfügung, die Raum für Spiel, Bewegung und Begegnung bieten.
Mehrere Supermärkte wie Aldi, Norma und Penny befinden sich in unmittelbarer Nähe. Ein Wochenmarkt sowie kleinere Einzelhändler ergänzen das vielfältige Angebot für den täglichen Bedarf.
Auch für Familien ist der Standort besonders attraktiv. In der näheren Umgebung befinden sich mehrere Kindertagesstätten sowie Schulen aller Stufen – von der Grundschule bis zum Gymnasium.
Die Anbindung an den öffentlichen Nahverkehr ist gut ausgebaut: Die Bushaltestelle Hellersdorfer Str./Gülzower Str (der Linien 191, 197, 269) ist in ca. sieben Minuten zu Fuß erreicht. In nur fünf Fußminuten gelangt man zum U-Bahnhof Kaulsdorf-Nord (U5), der eine direkte Verbindung in die Berliner Innenstadt bietet. Auch der S-Bahnhof Kaulsdorf ist mit dem Bus nur ca. zehn Minuten entfernt und ermöglicht mit der S5 eine schnelle Verbindung sowohl ins Stadtzentrum als auch ins Brandenburger Umland.
Bilder
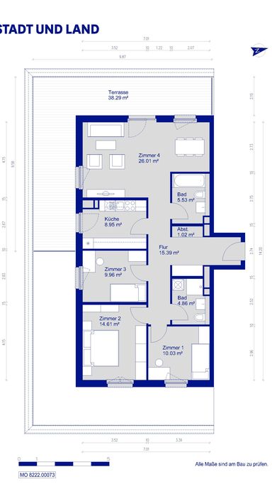
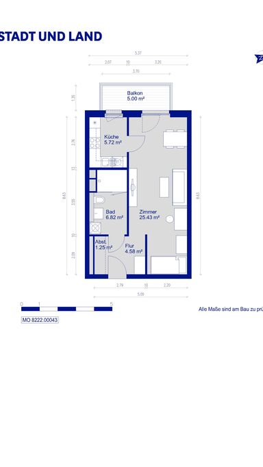
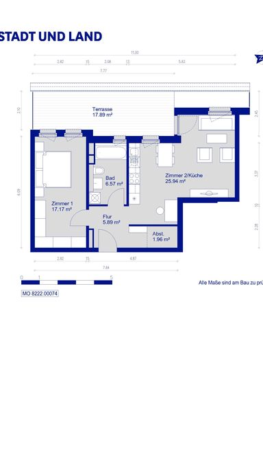
Grundrisse
Spielplatz- und Begegnungsflächen
Aufzüge über alle Etagen
Heizung/ Warmwasser: Fernwärme
barrierearme oder barrierefreie Wohnungen
Rollator- und Kinderwagenräume im KG, mit Aufzug erreichbar
PKW-Stellplätze zur Anmietung
Fahrradstellplätze in Eingangsnähe
Balkon oder Terrasse
alle Wohnungen im Erdgeschoss mit Terrasse, im Staffelgeschoss mit Dachterrasse
Abstellbereich innerhalb der Wohnung
Bäder mit Dusche oder Wanne
Fußbodenheizung
Fußbodenbelag aus Vinyl
offene oder geschlossene Küchen
verschließbare Fensterbeschläge in den EG-Wohnungen
Rollläden in den EG-Wohnungen
Wohnungsanzahl: 154
Davon öffentlich gefördert mit WBS (Wohnberechtigungsschein-Pflicht): 85 Wohnungen
| Zimmeranzahl | Anzahl der Wohnungen |
|---|---|
| 1 Zimmer | 58 (davon 47 mit WBS) |
| 2 Zimmer | 66 (davon 27 mit WBS) |
| 3 Zimmer | 2 (davon 0 mit WBS) |
| 4 Zimmer | 28 (davon 11 mit WBS) |
| Zimmeranzahl | 1 Zimmer |
|---|---|
| Anzahl der Wohnungen | 58 (davon 47 mit WBS) |
| Zimmeranzahl | 2 Zimmer |
| Anzahl der Wohnungen | 66 (davon 27 mit WBS) |
| Zimmeranzahl | 3 Zimmer |
| Anzahl der Wohnungen | 2 (davon 0 mit WBS) |
| Zimmeranzahl | 4 Zimmer |
| Anzahl der Wohnungen | 28 (davon 11 mit WBS) |
Die vorbezeichneten Daten dienen der Orientierung. Abweichungen sind möglich.
Die Mietpreisgestaltung richtet sich nach der jeweiligen gültigen Kooperationsvereinbarung zwischen den landeseigenen Wohnungsbaugesellschaften und dem Gesellschafter Land Berlin. Etwa die Hälfte der Wohnfläche wird mit Fördermitteln des Landes Berlin finanziert. Diese Wohnungen werden an Inhabende eines Wohnberechtigungsscheins vermietet.
Stand: Dezember 2025