Ein Zuhause im Grünen – Wohnen am Treptower Park
)
Ein Zuhause im Grünen – Wohnen am Treptower Park

© Tzscheutschler und Kniesche glashaus.studio GbR
Bauvorhaben: Galileistraße 27-39, 12435 Berlin
Bezugsfertigkeit des 3. Bauabschnitts: voraussichtlich im 2. Quartal 2026
Umgeben von einer einzigartigen Wald- und Seenlandschaft entstehen im Berliner Bezirk Treptow-Köpenick im dritten Bauabschnitt insgesamt 90 moderne Wohnungen. Die Nähe zum Treptower Park macht dieses Wohnquartier zu einem besonderen Ort für alle, die naturnah und dennoch zentral wohnen möchten.
Die 1 bis 4-Zimmer-Wohnungen sind ideal für kleine Familien, Paare, Singles oder Senior*innen. Diese verteilen sich auf vier Geschosse und ein Staffelgeschoss, verfügen über einen Balkon oder eine Terrasse und sind bequem per Aufzug erreichbar. Alle Wohnungen werden barrierearm oder barrierefrei gebaut – für ein komfortables und selbstbestimmtes Leben in jedem Alter.
Sie suchen ein Zuhause im Grünen? Entdecken Sie hier unsere aktuellen Wohnungsangebote.
Bitte beachten Sie, dass aufgrund der überaus hohen Nachfrage alle Besichtigungstermine sehr schnell vergeben sein werden. Die entsprechenden Exposés werden dann nicht mehr angezeigt. Unser Vermietungsteam wird alle Anfragen bearbeiten und regelmäßig neue Objekte einstellen, sobald wieder Besichtigungstermine verfügbar sind. Bitte sehen Sie von der Kontaktaufnahme über unseren Zentralen Kundenservice sowie unsere Vermietungsteams ab.
Die neuen Wohngebäude fügen sich harmonisch in die bestehende Baustruktur ein. Innerhalb der Wohnanlage laden modern gestaltete und begrünte Außenanlagen zum Verweilen ein. Mehrere Spielflächen bieten Kindern abwechslungsreiche Freizeitmöglichkeiten. PKW-Stellplätze stehen zur Anmietung bereit und überdachte Fahrradstellplätze befinden sich in Eingangsnähe.
Die Nähe zum Treptower Park und zur Spree macht dieses Wohngebiet besonders attraktiv. Der Treptower Park mit der Archenhold-Sternwarte, dem Hafengebiet und der Insel der Jugend bietet zahlreiche Kulturveranstaltungen für Jung und Alt. Wassersportler*innen können auf der Spree segeln, paddeln oder Boot fahren. Dank der zentralen Lage ist die Nahversorgung gut ausgebaut: Einkaufsmöglichkeiten, ein Ärztehaus und eine Kita befinden sich in der Nähe.
Das Wohnquartier ist gut an den öffentlichen Nahverkehr angebunden. Den S-Bahnhof Plänterwald erreichen Sie in vier Minuten. Die Bushaltestelle Rathaus Treptow der Linie 265 ist nur wenige Meter entfernt.
Bilder
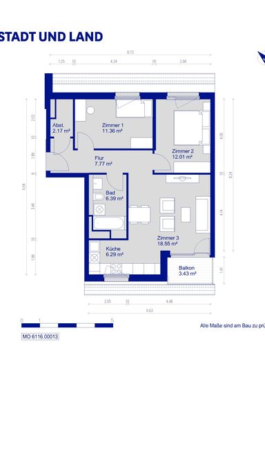
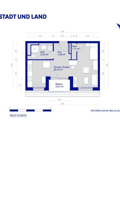
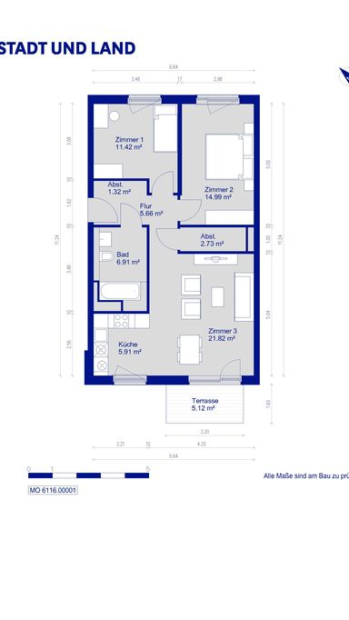
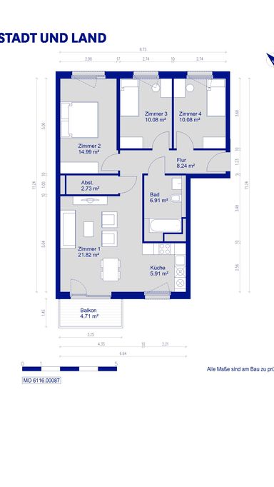
Grundrisse
1-ZimmerwohnungDieser Link führt zu einer externen Seite
2-ZimmerwohnungDieser Link führt zu einer externen Seite
3-ZimmerwohnungDieser Link führt zu einer externen Seite
4-ZimmerwohnungDieser Link führt zu einer externen Seite
Spielplatz- und Begegnungsflächen
Aufzüge über alle Etagen
Heizung/ Warmwasser: Fernwärme
barrierearme und barrierefreie Wohnungen
PKW-Stellplätze zur Anmietung
Rollator- und Kinderwagenräume
Fahrradstellplätze in Eingangsnähe, überdacht und abschließbar
Balkon oder Terrasse
alle Wohnungen im Erdgeschoss mit Terrasse, im Staffelgeschoss mit Dachterrasse
Abstellbereich innerhalb der Wohnung
Bäder inkl. Dusche mit Glasabtrennung oder Wanne
Fußbodenheizung
Fußbodenbelag aus Vinyl
offene und geschlossene Küchen
verschließbare Fensterbeschläge in den EG-Wohnungen
Rollläden in den EG-Wohnungen
Wohnungsanzahl 3. Bauabschnitt: 90
Davon öffentlich gefördert mit WBS (Wohnberechtigungsschein-Pflicht): 45 Wohnungen
| Zimmeranzahl | Anzahl der Wohnungen | Wohnungsgröße |
|---|---|---|
| 1 Zimmer | 12 (davon 7 mit WBS) | ca. 37 m² bis ca. 40 m² |
| 2 Zimmer | 18 (davon 8 mit WBS) | ca. 50 m² |
| 3 Zimmer | 18 (davon 8 mit WBS) | ca. 64 m² - 73 m² |
| 4 Zimmer | 42 (davon 22 mit WBS) | ca. 82 m² |
| Zimmeranzahl | 1 Zimmer |
|---|---|
| Anzahl der Wohnungen | 12 (davon 7 mit WBS) |
| Wohnungsgröße | ca. 37 m² bis ca. 40 m² |
| Zimmeranzahl | 2 Zimmer |
| Anzahl der Wohnungen | 18 (davon 8 mit WBS) |
| Wohnungsgröße | ca. 50 m² |
| Zimmeranzahl | 3 Zimmer |
| Anzahl der Wohnungen | 18 (davon 8 mit WBS) |
| Wohnungsgröße | ca. 64 m² - 73 m² |
| Zimmeranzahl | 4 Zimmer |
| Anzahl der Wohnungen | 42 (davon 22 mit WBS) |
| Wohnungsgröße | ca. 82 m² |
Die vorbezeichneten Daten hinsichtlich der Wohnungsgrößen dienen zur Orientierung. Abweichungen sind möglich.
Die Mietpreisgestaltung richtet sich nach der jeweiligen gültigen Kooperationsvereinbarung zwischen den landeseigenen Wohnungsbaugesellschaften und dem Gesellschafter Land Berlin. Etwa die Hälfte der Wohnfläche wird mit Fördermitteln des Landes Berlin finanziert. Diese Wohnungen werden an Inhabende eines Wohnberechtigungsscheins vermietet.