)
Neues Stadtquartier „Buckower Felder“ – Jetzt Erstmieter*in werden!









Bauvorhaben:
Buckower Felder in 12349 Berlin-Neukölln
Bezugsfertigkeit:
etappenweise; 2025 bis 2026
Am südlichen Stadtrand Berlins entsteht ein neues Stadtquartier mit rund 900 Wohnungen, zwei Quartiersgaragen, Arztpraxen, einer KITA, einer Jugendfreizeiteinrichtung und einer Mobilitätsstation. Die ersten 300 Wohnungen wurden bereits bezogen.
Im Laufe des Jahres 2025 werden weitere 200 Wohnungen bezugsfertig und bis 2026 kommen nochmals 200 Wohnungen hinzu.
Zu den Gewerbeflächen
Bitte beachten Sie, dass aufgrund der überaus hohen Nachfrage alle Besichtigungstermine sehr schnell vergeben sein werden. Die entsprechenden Exposés werden dann nicht mehr angezeigt. Unser Vermietungsteam wird alle Interessentenanfragen bearbeiten und regelmäßig neue Objekte einstellen, sobald wieder Besichtigungstermine verfügbar sind. Bitte sehen Sie von der Kontaktaufnahme über unsere Servicebüros sowie unsere Vermietungsteams ab.
Zwischen Gropiusstadt und Lichtenrade, nahe des Britzer Gartens, entsteht im Stadtteil Berlin-Neukölln das neue Stadtquartier „Buckower Felder“. Die geplanten drei- bis fünfgeschossigen Gebäude verteilen sich auf mehrere Baufelder und passen sich gut in die bestehende Stadtteilstruktur ein.
Bei der Planung war eine gute Anbindung zum bestehenden Stadtteil von Anfang an wichtig. So stellt der Quartiersplatz an der Ecke Gerlinger Str./Buckower Damm die Vernetzung zum angrenzenden Stadtraum her. Hier entsteht für alle Stadtteilbewohner u. a. ein Eckgebäude mit verschiedenen Nutzungsmöglichkeiten, wie für Arztpraxen, einer KITA und Jugendfreizeiteinrichtung sowie das Nachbarschaftsbüro.
Innerhalb des Quartiers sind 4 Angerplätze mit Sitzmöglichkeiten und Grünflächen vorgesehen. Diese fördern als Orte der Begegnung und Kommunikation das gemeinschaftliche Miteinander der Bewohner.
Das Aktionsband Buckower Damm verbindet das Quartier mit der bestehenden Stadtstruktur. Neben den geplanten Fuß- und Radwegeverbindungen entstehen hier Mehrgenerationen- und Freizeit-Spielplätze sowie Grünflächen und Sitzmöglichkeiten. Diese abwechslungsreich gestalteten Flächen sorgen bei den Bewohnern aller Altersgruppen für Spaß und Unterhaltung.
Für Naturliebhaber ist ebenfalls gesorgt. So ist ein Landschafspark als Übergang zu den Buckower Feldern vorgesehen. Erschlossen wird dieser Park durch ein dichtes Fuß- und Radwegenetz. Darüber hinaus wird ein großer öffentlicher Spielplatz für Kinder von 0 bis 12 Jahren geplant, um auch den Bedürfnissen der jungen Bewohner gerecht zu werden.
Der am Quartier angrenzende Mauerweg kennzeichnet den Verlauf der ehemaligen DDR-Grenzanlagen zu West-Berlin. Heute verläuft dort eine attraktive Rad- und Wanderroute, die durch malerische Landschaften und an historisch interessanten Orten vorbeiführt.
Die Bewohner des Quartiers profitieren von einer gut ausgebauten Nahversorgung. So befinden sich in der Nähe mehrere Supermärkte, Restaurants, eine Apotheke, Schulen wie die Heinrich Mann Schule und das Leonardo da Vinci Gymnasium. Auch werden innerhalb des Quartiers Gewerbeflächen zur Verfügung gestellt, die die Ansiedlung von weiteren Einrichtungen fördern.
Die Bereitstellung einer zusätzlichen Bushaltestelle direkt am Quartier sorgt für eine gute Anbindung an den ÖPNV. Für PKW-Fahrer ist die B96 nur wenige Autominuten entfernt.





















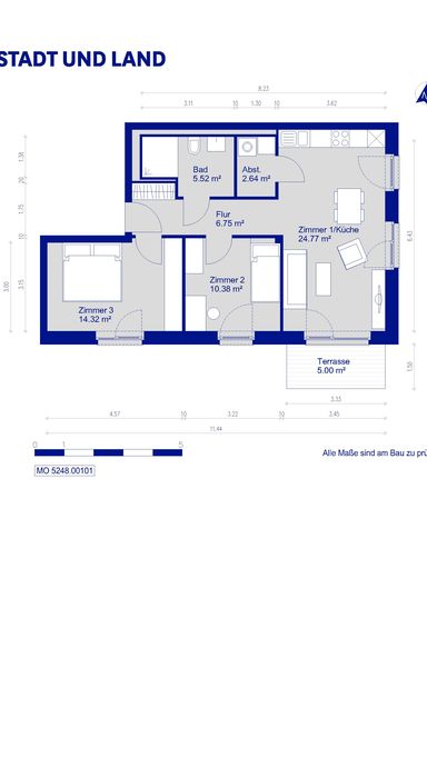
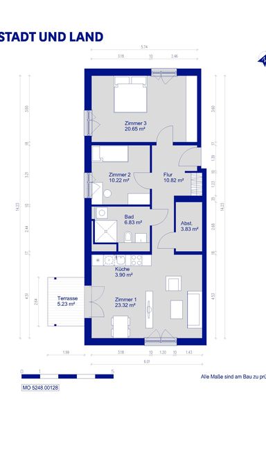
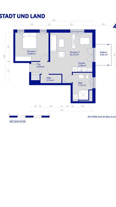
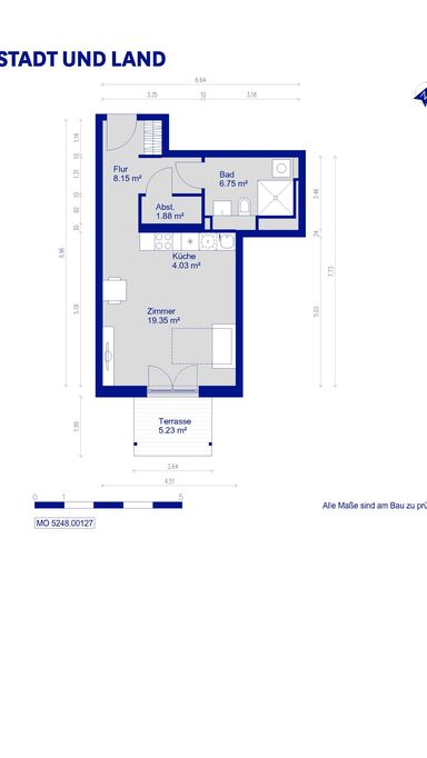
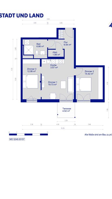
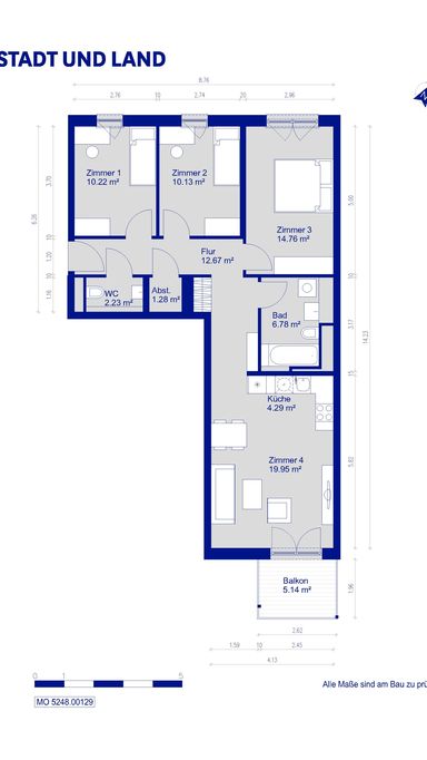
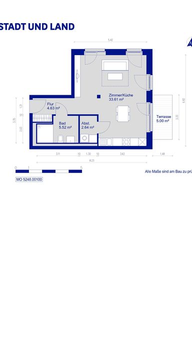
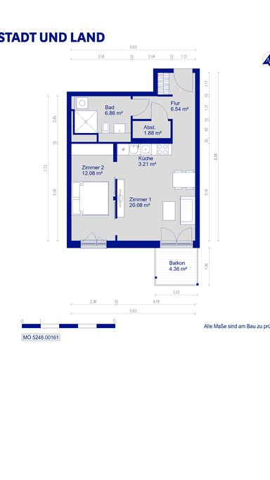
Grundrisse










Wohnungsanzahl insgesamt: 697
Davon voraussichtlich 286 mietpreisgebunden mit WBS (Wohnberechtigungsschein-Pflicht).
Geplante Unterbringung von 241 geflüchteten Personen (76 Wohnungen).
Zimmeranzahl | Anzahl der Wohnungen |
---|---|
1 Zimmer | 53 (davon voraussichtlich 33 mit WBS) |
1,5 Zimmer | 25 (davon voraussichtlich 24 mit WBS) |
2 Zimmer | 237 (davon voraussichtlich 127 mit WBS) |
3 Zimmer | 262 (davon voraussichtlich 93 mit WBS) |
4 Zimmer | 115 (davon voraussichtlich 7 mit WBS) |
5 Zimmer | 1 (davon voraussichtlich 0 mit WBS) |
Zimmeranzahl | 1 Zimmer |
---|---|
Anzahl der Wohnungen | 53 (davon voraussichtlich 33 mit WBS) |
Zimmeranzahl | 1,5 Zimmer |
Anzahl der Wohnungen | 25 (davon voraussichtlich 24 mit WBS) |
Zimmeranzahl | 2 Zimmer |
Anzahl der Wohnungen | 237 (davon voraussichtlich 127 mit WBS) |
Zimmeranzahl | 3 Zimmer |
Anzahl der Wohnungen | 262 (davon voraussichtlich 93 mit WBS) |
Zimmeranzahl | 4 Zimmer |
Anzahl der Wohnungen | 115 (davon voraussichtlich 7 mit WBS) |
Zimmeranzahl | 5 Zimmer |
Anzahl der Wohnungen | 1 (davon voraussichtlich 0 mit WBS) |
Spielplatz- und Begegnungsflächen
teilweise Aufzüge über alle Etagen
Heizung/Warmwasser: Fernwärme
teilweise barrierearm, barrierefrei oder rollstuhlgerecht
teilweise mit Mieterkeller
PKW-Stellplätze anmietbar
öffentliche Ladeplätze für E-Autos
behindertengerechte Stellplätze
Fahrradstellplätze in Eingangsnähe
Überdachte Fahrradstellplätze
Balkon oder Terrasse
Wohnungen im Erdgeschoss mit Balkon und Terrasse
teilw. Abstellraum innerhalb der Wohnung
Bäder mit Dusche oder Wanne
Fußbodenheizung
Vinylboden
offene Küchen
verschließbare Fensterbeschläge und Rollläden in den EG-Wohnungen
Im neuen Stadtquartier Buckower Felder entsteht, neben einem lebendigen Wohnquartier, auch ein attraktiver Gewerbestandort. So werden hier eine Kindertagesstätte, eine Jugendfreizeiteinrichtung sowie weitere Räumlichkeiten für soziale Dienste angeboten. Ein Ärztehaus, Büroräume, ein Café und eine Ladenzeile für den lokalen Einzelhandel runden das Angebot ab.
Die Einzelhandelsflächen und Arztpraxen werden am zukünftigen Quartiersplatz an der Ecke Gerlinger Str./Buckower Damm angesiedelt. Die Gebäude sind voraussichtlich ab Dezember 2024 bezugsfertig. Interessierte können Ihren Businessplan für die geplante Nutzung auf dieser Seite unter der Rubrik „Registrierung für Gewerbeinteressenten“ hochladen und sich unverbindlich registrieren.
Bitte beachten Sie, dass alle Gewerbeflächen ohne Mobiliar und Kücheneinrichtung angeboten werden.











Fotos Arztpraxis - Typ 1










Zum 360°-Rundgang↗Dieser Link führt zu einer externen Seite
Fotos Arztpraxis - Typ 2











Zum 360°-Rundgang↗Dieser Link führt zu einer externen Seite
Gern nehmen wir Ihre Kontaktdaten mit Ihrer Geschäftsidee auf. Nach Prüfung Ihres Businessplans melden wir uns bei Ihnen. Vorsorglich weisen wir darauf hin, dass sich durch Ihre Registrierung kein Anspruch auf eine Anmietung ableiten lässt.
Mit dem Aufbau eines Nachbarschaftsmanagements möchte die STADT UND LAND die Entwicklung des Quartiers vom Baubeginn an und auch nach Bezug der Wohnungen begleiten. Dabei sollen das nachbarschaftliche Miteinander im Quartier und seine Vernetzung mit den umliegenden Gebieten dauerhaft gefördert werden. Es dient als Anlaufstelle während der Bauphase ebenso wie der Unterstützung der späteren Bewohnerinnen und Bewohner bei quartiersbezogenen Aktivitäten.
Ihre Ansprechpartnerin bei Fragen, für Informationen und Anregungen:
Friderike Krüger
Projektleitung Nachbarschaftsmanagement Buckower Felder
SOPHIA Berlin GmbH
buckowerfelder@sophia-berlin.de
Das Nachbarschaftsmanagement kann keine Fragen zur Vermietung beantworten.
Das Erschließungskonzept setzt wesentliche Bausteine einer nachhaltigen Mobilität um. Ausgehend von zwei Hauptzugängen erschließen zwei voneinander getrennte Wohnstraßen das Quartier. Diese enden im Quartier, um Durchgangsverkehr zu vermeiden. Die öffentlichen Straßenräume sind verkehrsberuhigt und werden als Mischverkehrsflächen mit einer hohen Aufenthaltsqualität ausgebildet.
Für das gesamte Quartier werden PKW-Stellplätze in zwei Quartiersgaragen geplant. An der größeren der beiden Garagen wird eine Mobilitätsstation angedockt sein, die umweltfreundliche Verkehrsangebote als Service für die Bewohner bereitstellen wird. Das Mobilitätskonzept zielt darauf ab, den CO2-Austoß innerhalb des Quartiers zu reduzieren.
Es werden attraktive Möglichkeiten für Fußgänger und Radfahrer geschaffen, E-Mobilität gefördert und ein möglichst autofreier Bereich geschaffen. Dies hat nicht nur positive Effekte in Bezug auf den Lärmschutz, sondern verringert den ökologischen Fußabdruck des Stadtgebietes erheblich.